產品展示
您現在的位置: 首頁--產品展示
產品描述
YD43H型先導式超大膜片高靈敏度減壓閥在普通減壓閥的基礎上做了很大的改進。膜片采用了新型材料,并大大加工了工作面積,因此閥門上游壓力或下游負荷細微的變化都能及時準確的反饋到主閥膜片,來調節主閥的開度,確保下游壓力的穩定。
先導式超大膜片高靈敏度減壓閥的另一個突出的特點為:同一個閥體上可安裝和互換多個導閥在穩壓的同時,實現溫度控制、上游壓力的控制、遠程的開關控制等。

一、先導式超大膜片高靈敏度減壓閥主要技術參數和性能指標
|
公稱壓力Mpa |
2.5 |
|
殼體試驗壓力Mpa* |
3.75 |
|
密封試驗壓力Mpa |
2.5 |
|
最高進口壓力Mpa |
2.5 |
|
出口壓力范圍Mpa |
0.02-1.6 |
|
壓力特性偏差Mpa△P2P |
GB12244-1989 |
|
流量特性偏差MpaP2G |
GB12244-1989 |
|
滲漏量 |
GB12245-1989 |
*:殼體試驗不包括膜片、閥蓋。
二、先導式超大膜片高靈敏度減壓閥主要零件材料
|
零件名稱 |
零件材料 |
|
閥體 閥蓋 |
WCB |
|
閥座 |
2Cr13 |
|
閥瓣 |
2Cr13 |
|
閥桿 |
2Cr13 |
|
膜片 |
1Cr18Ni9Ti |
|
調節彈簧 |
60Si2Mn |
三、先導式超大膜片高靈敏度減壓閥流量系數Cv
|
DN |
15 |
20 |
25 |
32 |
40 |
50 |
|
Cv |
2.9 |
5.3 |
8.6 |
11.6 |
16.5 |
29.1 |
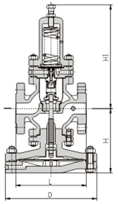
四、先導式超大膜片高靈敏度減壓閥連接尺寸
|
DN |
L |
H1 |
H |
D | |
|
15 |
147 |
235 |
145 |
207 | |
|
20 |
154 |
235 |
145 |
207 | |
|
25 |
160 |
160 |
235 |
145 |
207 |
|
32 |
180 |
250 |
160 |
220 | |
|
40 |
16 |
250 |
160 |
220 | |
|
50 |
230 |
270 |
180 |
220 |
其他相關產品
|
|
|
| ||||||||






