保溫夾套藍式過濾器 SBL
過濾器又名除污器、過濾閥,是輸送介質的管道系統不可缺少的一種裝置,其作用是過濾介質中的機械雜質,可以對污水中的鐵銹、沙粒、液體中少量固體顆粒等進行過濾以保護設備管道上的配件免受磨損和堵塞,可保護設備的正常工作,當流體進入置有一定規格濾網的濾筒后,其雜質被阻擋,而清潔的濾液則由過濾器出口排出,當需要清洗時,只要將可拆卸的濾筒取出,處理后重新裝入即可,因此,使用維護極為方便。

|
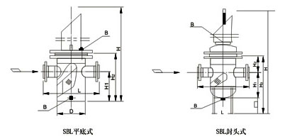
SBL型 法蘭連接直通平底籃式過濾器
| 公稱直徑 ND |
φ |
L |
H1 |
H2 |
H |
排放口“ B” |
有效過濾面積 (m2) |
| 25 |
76 |
220 |
160 |
260 |
480 |
R1/2″ |
0.003619 |
| 32 |
89 |
220 |
165 |
270 |
495 |
R1/2″ |
0.003619 |
| 40 |
108 |
280 |
180 |
300 |
550 |
R1/2″ |
0.005718 |
| 50 |
133 |
280 |
180 |
300 |
550 |
R1/2″ |
0.005718 |
| 65 |
133 |
330 |
220 |
350 |
650 |
R1/2″ |
0.009613 |
| 80 |
159 |
340 |
260 |
400 |
740 |
R1/2″ |
0.01539 |
| 100 |
219 |
420 |
310 |
470 |
680 |
R1/2″ |
0.02464 |
| 150 |
273 |
500 |
430 |
620 |
1175 |
R3/4″ |
0.04866 |
| 200 |
325 |
560 |
530 |
780 |
1495 |
R3/4″ |
0.07858 |
| 250 |
426 |
660 |
640 |
930 |
1810 |
R3/4″ |
0.12005 |
| 300 |
478 |
750 |
840 |
1200 |
2310 |
R3/4″ |
0.16537 |
SBL型 法蘭連接直通封頭籃式過濾器
| 公稱直徑 DN |
Do |
n-y |
φ |
L |
H1 |
H2 |
H3 |
H |
排放口“ B ” |
有效過濾面積 (m2) |
| 200 |
290 |
4-16 |
325 |
560 |
540 |
230 |
1070 |
1875 |
R3/4″ |
0.07858 |
| 250 |
375 |
4-16 |
426 |
660 |
650 |
270 |
1220 |
2170 |
R3/4″ |
0.12065 |
| 300 |
420 |
4-16 |
480 |
750 |
860 |
320 |
1420 |
2670 |
R3/4″ |
0.16537 |
| 350 |
460 |
4-16 |
500 |
800 |
1010 |
370 |
1680 |
3085 |
R1″ |
0.2225 |
| 400 |
500 |
4-16 |
550 |
840 |
1150 |
400 |
1850 |
3445 |
R1″ |
0.2916 |
| 450 |
550 |
4-16 |
600 |
960 |
1310 |
440 |
2050 |
3810 |
R1″ |
0.3642 |
| 500 |
640 |
4-16 |
700 |
1080 |
1440 |
470 |
2210 |
4145 |
R1″ |
0.4587 |
|